• ReklamaA1 - silpol v2

Szukaj

    Reklama
    B1 - IGP 2024 Julian

    Aktualności i przegląd rynku

    Wydanie nr: 3(59)/2009

    Aktualności i przegląd rynku

    Lakiernictwo Ciekłe

    ponad rok temu  01.05.2009, ~ Administrator,   Czas czytania 3 minuty

    Strona 2 z 2

    713130.jpg

    Lakierowanie okna.

    Automatyczne zasilanie lakierami

    Zastosowane automatyczne zasilanie (dostarczanie lakieru do pistoletów) lakierami i rozcieńczalnikami, automatyczne przepłukiwanie instalacji przed zmianami i sama automatyczna zmiana kolorów w zespole zlokalizowanym tuż przed pistoletem - dobrze uzupełniają system

    i w kolejnym jego segmencie bardzo ograniczają straty lakierów i rozpuszczalników.

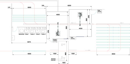
    713r4.jpg

    Rozplanowanie przykładowej sekcji lakierowania (skaner, roboty, „kuchnia” - zasilanie lakierami).

    Wymiary okien

    Standardowy system jest przeznaczony dla okien o wysokości do 2600 mm i grubości 200 mm bez ograniczenia ich długości. Dzięki odpowiednio dostosowanym rozwiązaniom można również realizować wymagania wykraczające poza zakres wymiarów standardowych.

    System Rowinco pozwala na uniknięcie pracy człowieka w bardzo szkodliwym środowisku kabiny lakierniczej, ogranicza ilości odpadków lakierniczych i strat lakierów, jest systemem lakierowania przyjaznym środowisku naturalnemu. Może być zastosowany przy lakierowaniu okien lakierami wodorozcieńczalnymi, jak i także być wykorzystanym do lakierowania innych wyrobów niż okna.

    Andrzej Augustyn