• Reklama
    A1 - kabe

Szukaj

    ReklamaB1 - EcoLine 04.2021-12.2025 Bogumiła

    Aktualności i przegląd rynku

    Wydanie nr: 6(62)/2009

    Aktualności i przegląd rynku

    Lakiernictwo Ciekłe

    ponad rok temu  01.11.2009, ~ Administrator,   Czas czytania 4 minuty

    Strona 1 z 2

    Nowe rozwiązanie w lakierowaniu okien i drzwi - ROWINCO

    Nowa, bardzo innowacyjna linia lakiernicza zbudowana u szwajcarskiego producenta stolarki okiennej FENSTER BÜNTER AG zdała pomyślnie egzamin praktyczny. System ROWINCO firmy REITER GmbH + Co. KG Oberflächentechnik z Winnenden umożliwia nie tylko efektywne lakierowanie standardowych okien i drzwi, ale również nanoszenie powłok lakierniczych na okna o najbardziej nawet wymyślnych kształtach. Do takich należą szczególnie plasujące się w najwyższym segmencie cenowym okna trójkątne, trapezowe i łukowe.

    W zakładzie FENSTER BÜNTER AG jest wykorzystywane wyłącznie drewno pochodzące z tutejszego regionu. Kłody są przecierane na miejscu na tarcicę i kantówkę, z której doświadczeni pracownicy wytwarzają prawdziwe dzieła sztuki stolarskiej. Precyzyjnie sterowany przez lasery i roboty firmy Reiter proces lakierowania zabezpiecza na wiele lat wyrób najwyższej klasy, a jednocześnie gwarantuje utrzymanie stałej powtarzalnej jakości. Oprócz odcieni kolorystycznych z całej palety RAL, stosowana jest również szeroka paleta lazurów.

    788071.jpg

    ReklamaŚT - electriscoatings 24.04 - 24.10 Julian
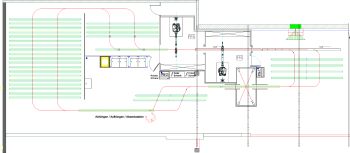
    Schemat linii lakierniczej.

    Opis działania

    System przygotowuje za pomocą wyrafinowanej techniki laserowej i skanera trójwymiarowy model lakierowanego przedmiotu, a następnie samoczynnie generuje program lakierowania dla robotów. Program ten jest weryfikowany przez specjalne oprogramowanie i po zatwierdzeniu przesyłany do robota lakierniczego. ROWINCO dokładnie rejestruje kształt a nie tylko obrys wyrobów do lakierowania oraz ich dokładne położenie względem przenośnika. Taki proces jest powtarzany dla każdego lakierowanego elementu. W związku z tym możliwe jest zastosowanie robota również przy małej liczbie produktów oraz stale zmieniających się zamówieniach indywidualnych. W normalnych warunkach byłoby to nie do pomyślenia z uwagi na zbyt duży nakład pracy związany z przeprogramowywaniem robotów. Następne korzyści to niskie zużycie lakieru, szybka zmiana kolorów oraz dokładna, kontrolowana grubość powłoki lakierniczej, zwłaszcza w trudno dostępnych miejscach, jak np. naroża. Tym samym, zapewnia to wysoką jakość wykończenia lakierowanych okien.

    788068.jpg

    Okna w strefie buforowej przed skanowaniem.

    Wprowadzenie nowego systemu zawiesi na stanowisku do zakładania/zdejmowania elementów przyniosło oszczędności czasowe do 30% w porównaniu z powszechnie do tej pory używanymi śrubowymi zaczepami hakowymi. W projektowaniu i wykonawstwie szczególną uwagę zwrócono na prostotę obsługi. Okna przeznaczone do lakierowania pracownik po prostu podwiesza na trawersach w strefie podawczej. Następnie na przejrzystym pulpicie obsługowym są ustawiane wszystkie niezbędne parametry, takie jak kolor i typ. Specyficzne dane, zależne od lakieru i typu elementów, wprowadzane do programu, zapewniają optymalne lakierowanie. Na przykład, dzięki różnym programom dla strony A i B w oknach drewniano-aluminiowych można zaoszczędzić znaczne ilości wyrobu lakierowego (różna grubość powłoki lakierowej). Po wprowadzeniu danych, okna na trawersie przejeżdżają przez komorę skanowania, kabiny lakiernicze, strefę podsuszania i przez suszarkę, po czym są kierowane do strefy zakładania/zdejmowania, gdzie w wygodny sposób mogą być zdejmowane z trawersów.

    WYDANIE 6(62)/2009

    Reklama
    C1 - prenumerata